Property Detail

30668 Ferndale

Running Springs CA 92382

$449,000

Status: Active

Property Details

Description

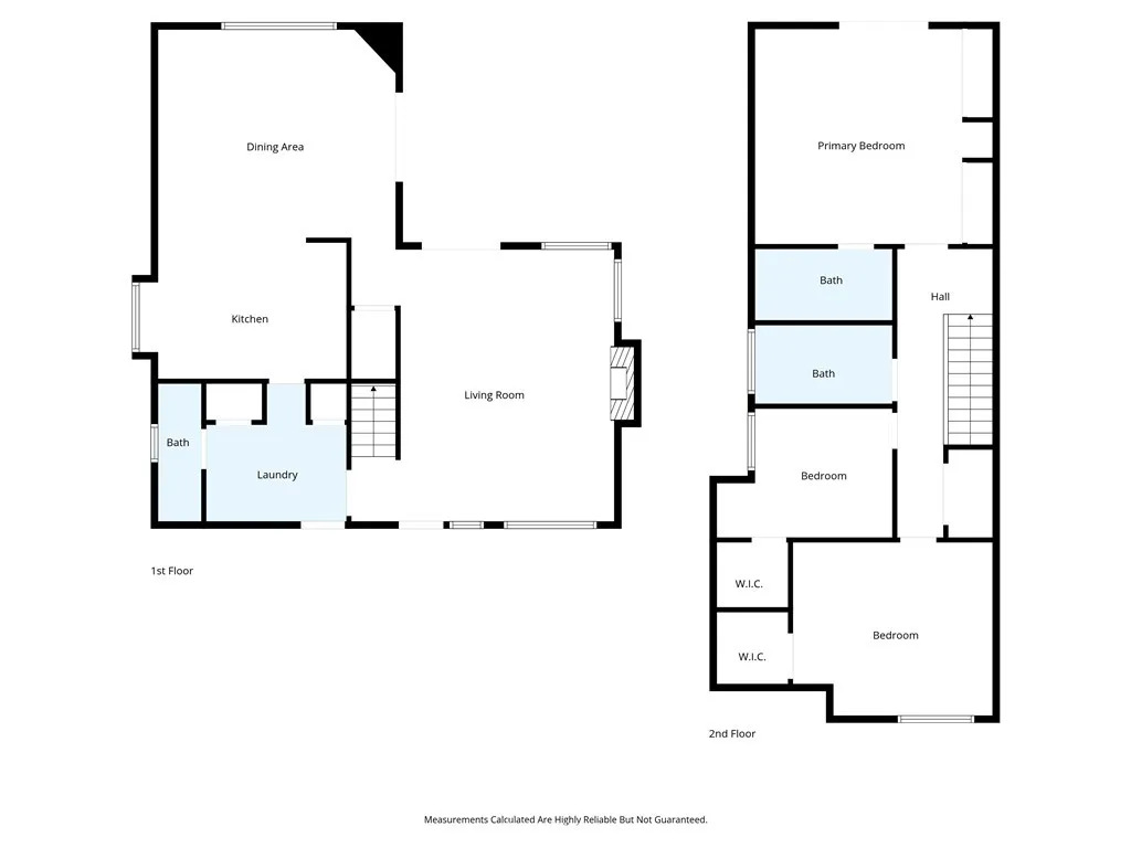
Spacious home with City Lights View! Comfortable and Practical for mountain living with a two car attached garage! You can enter the house either through the front door into the living room or right from the garage to drop your groceries in the kitchen and carry on with the day. Main floor features kitchen, dining room and living room with spacious laundry/utility room and half bathroom. From the main level is a deck attached for easy barbecuing and outdoor entertaining and taking in those tree views and city lights. Up the stairs is the primary bedroom with an abundance of built in closet space and attached primary bathroom with its own private deck. Upstairs there are two more large bedrooms with closets and another full bath. This house has a GENERATOR plumbed directly to natural gas, such a convenience for mountain living and should a power outage occur, just a flip of a switch and you'll have power! Not only that, but A/C and central heat! This quaint lot is terraced with places to enjoy nature and birdwatching as a respite from the busyness of life. Call your agent today to schedule a showing!

Map Location

Listing provided courtesy of JAIME STIANSEN of COLDWELL BANKER SKY RIDGE REALTY. Last updated . Listing information © 2026 SANDICOR.

Christian

Christian

DRE# 01245048
Inquire Now
admin Real estate 9:00 AM - 5:00 PM https://static.royacdn.com/Site-9bf0f64e-2cf5-48cd-be2e-b06f89c46f28/assets/sidebar_img_img.png realtor # # # https://static.royacdn.com/Site-9bf0f64e-2cf5-48cd-be2e-b06f89c46f28/assets/sidebar_img_img.png