Property Detail

23771 Zuger Dr

Crestline CA 92325

$415,000

Status: Active

Property Details

Description

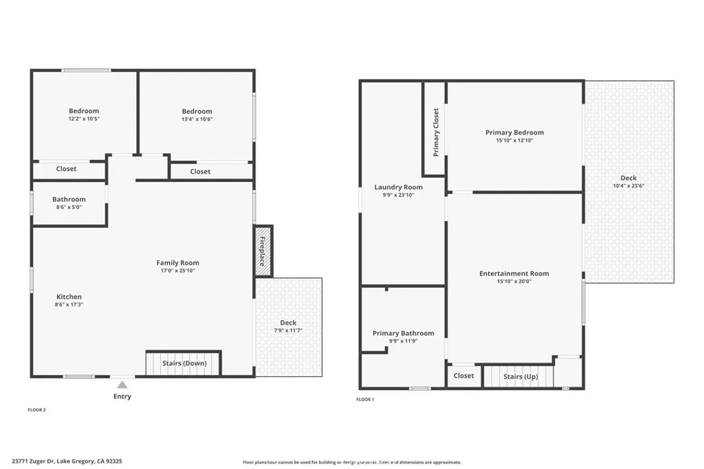
Welcome to this inviting three-bedroom, two full-bathroom home nestled among the pines of Crestline, offering 1,872 sq ft of living space on a 6,350 sq ft lot. Designed for comfort and versatility, the home features a desirable south facing orientation with multiple decks to enjoy the year round sunshine and tranquil forest views, and a completely Level 3 car parking deck attached to the property. Step inside to a spacious family room where soaring wood-beamed ceilings, tongue and groove wood paneling, and a stunning rock cladded center fireplace create a warm mountain ambiance. Just off the main living area, double doors open to a covered upper patio...perfect for relaxing or entertaining. The kitchen offers ample cabinetry, updated lighting, and included appliances. Upstairs, youll find two cozy bedrooms, each with ceiling fans, and a full bathroom that serves the level. Downstairs extends the living potential with a large game room currently outfitted with a pool table and dart area, with another opening to a second expansive south-facing deck. The lower level also features the primary suite with charming wood cladded walls, a ceiling fan, and a beautifully updated bath showcasing a subway tiled soaking tub and separate shower. Convenient laundry room access leads directly to the lower deck, offering some amazing seamless indoor-outdoor flow.. away from the elements. Additional highlights include central heating and air conditioning, parking for up to three vehicles with a level entry deck, and prescriptive easement(s) benefiting the property. Located on a quiet street y

Map Location

Listing provided courtesy of Tyler Kruse of First Team Real Estate. Last updated . Listing information © 2026 SANDICOR.

Christian

Christian

DRE# 01245048
Inquire Now
admin Real estate 9:00 AM - 5:00 PM https://static.royacdn.com/Site-9bf0f64e-2cf5-48cd-be2e-b06f89c46f28/assets/sidebar_img_img.png realtor # # # https://static.royacdn.com/Site-9bf0f64e-2cf5-48cd-be2e-b06f89c46f28/assets/sidebar_img_img.png